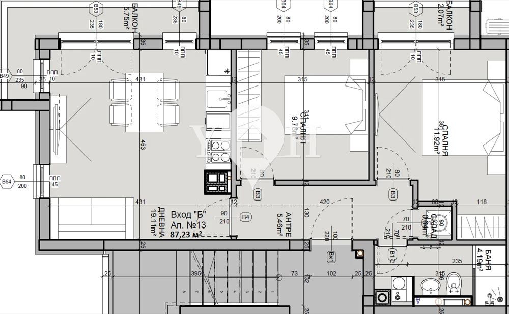
Екипът на YOHOME предлага за продажба тристаен апартамент с обща площ от 87,23 кв.м. Имотът е разположен на 3-ти етаж от 6-етажна жилищна сграда, находяща се в добре развития и предпочитан район кв. „Манастирски ливади – Изток“.
Апартаментът е с югозападно изложение, което осигурява отлична осветеност и комфорт през целия ден. Разпределението включва антре, просторна дневна, две спални, баня с тоалетна, два балкона и склад. Жилището е подходящо както за лично ползване, така и като инвестиция с дългосрочна стойност.
Сградата се намира в близост до ключови булеварди и бул. „България“, което осигурява бърз и удобен достъп до централните части на града, като в същото време предлага спокойна жилищна среда и близост до планината.
Сградата е проектирана с мисъл за съвременния начин на живот, съчетавайки функционални разпределения, модерна архитектура и висока добавена стойност. Районът разполага с отлична инфраструктура, разнообразие от търговски обекти, услуги и удобен градски транспорт.
За повече информация и огледи се свържете с нас и цитирайте код на обявата № 77942.
Разгледайте и другите ни предложения на страницата ни: www.yohome.bg
Бетина Георгиева е един от най-важните хора в екипа на Йохоум още от стартирането и в компанията тя влага цялото си старание за да могат клиентите да получат вякаква информация и помага не всеки един член на нашият екип. Бети е дясната ръка на всеки един брокер във фирмата. Първият човек, когото всеки клиент чува, когато позвъни по дадена обява. Бети е изключително точен и отговорен професионалист.
Използваме "бисквитки", за да персонализираме съдържанието и рекламите, да предоставяме функции на социалните медии и да анализираме трафика си. Също така споделяме информация за използването на нашия сайт с нашите партньори в областта на социалните медии, рекламата и анализа, които могат да я комбинират с друга информация, която сте им предоставили или която са събрали от използването на техните услуги.
Бисквитки нужни за правилното функциониране на онлайн магазина (като пазене на продукти в количката, изпращане на подсещане за забравена кошница по e-mail и др. )
Повече информация за основните бисквитки ➤| Име на бисквитка | Доставчик на бисквитки | Описание на бисквитката | Живот на бисквитката | Вид на бисквитката |
|---|---|---|---|---|
| XSRF-TOKEN | PHP | Гарантира сигурност за посетителите, като предотвратява фалшифициране на заявки между сайтове. Тази бисквитка е от съществено значение за сигурността на уебсайта и посетителя. | 1 ден | 1st Party |
| laravel_session | PHP | За съхраняване на потребителското име на влезлия потребител. Тази информация е необходима, за да позволи на потребителя да остане влязъл в уеб сайт, без да е необходимо да изпраща своето потребителско име и парола за всяка посетена страница. Без тази бисквитка потребителят не може да премине към области от уеб сайта, които изискват удостоверен достъп. | до 2 часа | 1st Party |
| __stripe_mid | Stripe | Служи за осигуряване на предотвратяване на измами при опит за пазаруване в сайта. | до 1 година | 3rd Party |
Реклама в други уебсайтове или платформи, ретаргетинг, ремаркетинг.
Повече информация за рекламните бисквитки ➤| Име на бисквитка | Доставчик на бисквитки | Описание на бисквитката | Живот на бисквитката | Вид на бисквитката |
|---|---|---|---|---|
| _fbp | Тази бисквитка е настроена от Facebook да доставя реклама, когато те са във Facebook или цифрова платформа, захранвана от реклама във Facebook, след като посетите този уебсайт. | 2 месеца | 3rd Party | |
| fr | Бисквитката също така проследява поведението на потребителя в мрежата на сайтове, които имат Facebook пиксел или Facebook социален плъгин. | - | 3rd Party |
Уеб контролиране, проследяване на реализациите на маркетингови инструменти.
Повече информация за основните бисквитки ➤| Име на бисквитка | Доставчик на бисквитки | Описание на бисквитката | Живот на бисквитката | Вид на бисквитката |
|---|---|---|---|---|
| _ga | Google Analytics | Използва се за разграничаване на потребителите (по подразбиране denied). | 2 години | 3rd Party |
| _gid | Google Analytics | Използва се за разграничаване на потребителите. | 24 часа | 3rd Party |
| _gat | Google Analytics | Използва се за намаляване на скоростта на заявка. Ако Google Analytics се имплементира чрез Google Tag Manager, тази бисквитка ще носи името _dc_gtm_ . | 1 минута | 3rd Party |
| Google Analytics | Съдържа информация, свързана с кампанията за потребителя. Свързани профили в Google Analytics и Google Ads, маркерите за преобразуване на уебсайтове на Google Ads ще прочетат тази „бисквитка“. | 90 дни | 3rd Party | |
| Google Remarketing | Google Analytics | Служи за проследяване на разгледани страници от потребители, които се изпращат към Google Ads | - | 3rd Party |
| dynx_itemid | Google Analytics | Служи за проследяване на ID на продукт в Google Ads | - | 3rd Party |
| dynx_pagetype | Google Analytics | Служи за проследяване на тип на страница в Google Ads | - | 3rd Party |
| dynx_totalvalue | Google Analytics | Служи за проследяване на стойност на продукт в Google Ads | 3rd Party | |
| dynx_category | Google Analytics | Служи за проследяване на категория в Google Ads | - | 3rd Party |
| ga4_analytics | Google Analytics | Служи за обработка на поведението като настройка на бисквитки на Google Analytics, изпращане на автоматични и подобрени измервателни събития и деклариране на общи настройки. | 3rd Party | |
| Google Conversion Tracking | Google Ads. | Служи за предаване на информация за поръчка към Google Ads. | - | 3rd Party |
| conversion ID | Google Ads. | Идентификационен номер служещ за предаване на информация за поръчка към Google Ads. | - | 3rd Party |
| conversion labеl | Google Ads. | Eтикет служeщ за предаване на информация за успешни поръчки към Google Ads. | - | 3rd Party |
Други външни услуги и софтуер за персонализиране на потребителското изживяване.
Повече информация за основните бисквитки ➤| Име на бисквитка | Доставчик на бисквитки | Описание на бисквитката | Живот на бисквитката | Вид на бисквитката |
|---|---|---|---|---|
Бисквитките са малки текстови файлове, които могат да се използват от уебсайтовете, за да направят работата на потребителя по-ефективна.
Законът постановява, че можем да съхраняваме "бисквитки" на вашето устройство, ако те са строго необходими за функционирането на този сайт. За всички други видове бисквитки се нуждаем от вашето разрешение.
Този сайт използва различни видове бисквитки. Някои бисквитки се поставят от услуги на трети страни, които се появяват на нашите страници.
Можете по всяко време да промените или да оттеглите съгласието си от Декларацията за бисквитките на нашия уебсайт.
Научете повече за това кои сме ние, как можете да се свържете с нас и как обработваме лични данни в нашата Политика за поверителност.
Когато се свързвате с нас във връзка със съгласието си, посочете идентификационния номер и датата на съгласието си.